Description
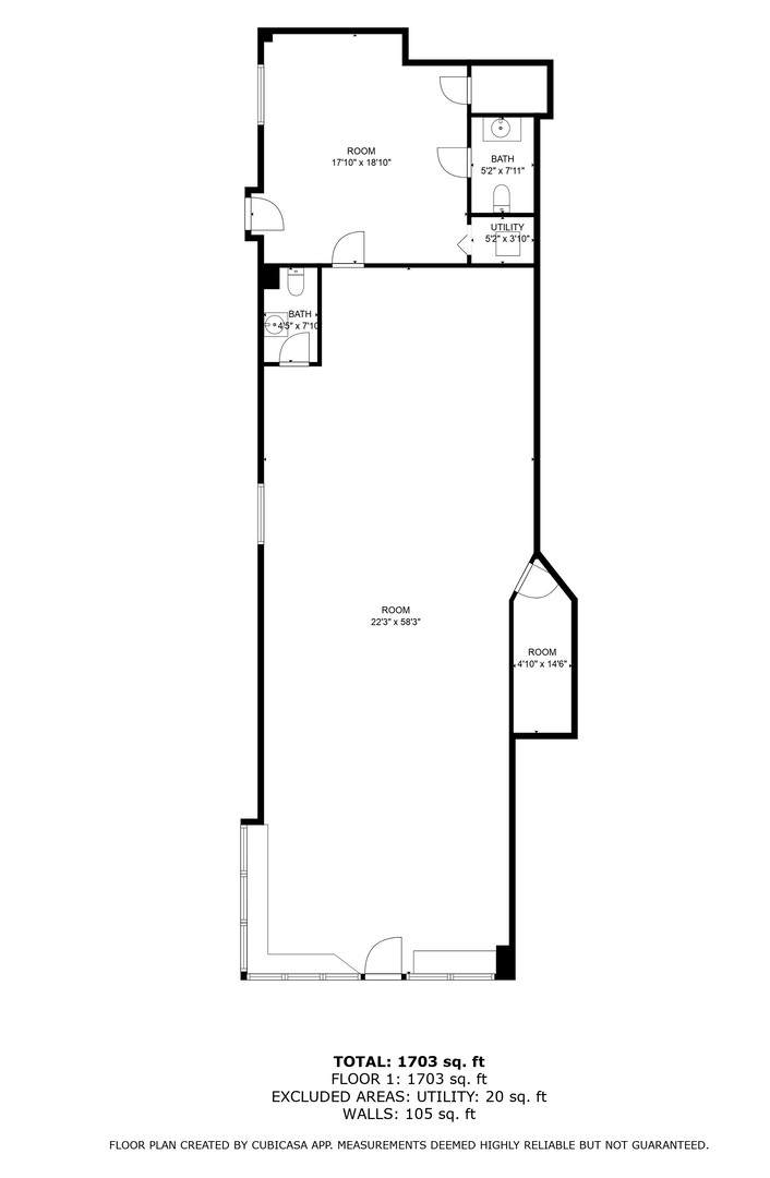
Prime Corner Commercial Space for Lease - East Village / West Town! Excellent opportunity to lease a ground-floor corner retail/office space offering 1,700 sq ft on the main level plus 600 sq ft of basement storage. This versatile space is ideal for a medical office, salon/spa, fitness or art studio, or professional services. Features include: High-visibility corner location with over 15,000 vehicles passing daily (per IDOT). Ground-level entry - no steps for easy access. Hardwood floors, high ceilings, central heat & A/C. Half bath in front area and half bath in back section plus a kitchenette area. Ample metered street parking available on both Chicago Ave and the side street. Restaurant/bar/bakery uses are not permitted. Owner requires tenant application, credit check & financials. Tenant responsible for electric, gas, heat, business insurance, scavenger, snow removal, internet. Don't miss this terrific opportunity. Available immediately!
-
0BEDS
-
N/AACRES
-
0BATHS
-
01/2 BATHS
School Ratings & Info
Description
Prime Corner Commercial Space for Lease - East Village / West Town! Excellent opportunity to lease a ground-floor corner retail/office space offering 1,700 sq ft on the main level plus 600 sq ft of basement storage. This versatile space is ideal for a medical office, salon/spa, fitness or art studio, or professional services. Features include: High-visibility corner location with over 15,000 vehicles passing daily (per IDOT). Ground-level entry - no steps for easy access. Hardwood floors, high ceilings, central heat & A/C. Half bath in front area and half bath in back section plus a kitchenette area. Ample metered street parking available on both Chicago Ave and the side street. Restaurant/bar/bakery uses are not permitted. Owner requires tenant application, credit check & financials. Tenant responsible for electric, gas, heat, business insurance, scavenger, snow removal, internet. Don't miss this terrific opportunity. Available immediately!
© 2025 Midwest Real Estate Data LLC. All rights reserved. IDX information is provided exclusively for consumers' personal, non-commercial use and may not be used for any purpose other than to identify prospective properties consumers may be interested in purchasing. Information is deemed reliable but is not guaranteed accurate by MTP, MRED or Suburban Life Realty.
Based on information submitted to the MRED as of 2025-12-04T22:59:55.62 UTC. All data is obtained from various sources and has not been, and will not be, verified by broker or MRED. MRED supplied Open House information is subject to change without notice. All information should be independently reviewed and verified for accuracy. Properties may or may not be listed by the
office/agent presenting the information.
Some properties which appear for sale on this website may subsequently have sold and may no longer be available. NOTICE: Many homes contain recording devices, and buyers should be aware they may be recorded during a showing.
Digital Millennium Copyright Act
